Casa indipendente in vendita

Pistoia, Via Degli Argonauti
€ 398.000
6 locali 6 locali
200 Mq 200 Mq
2 bagni 2 bagni

Casa indipendente in vendita

Pistoia, Via Degli Argonauti

Descrizione annuncio

PISTOIA CENTRO

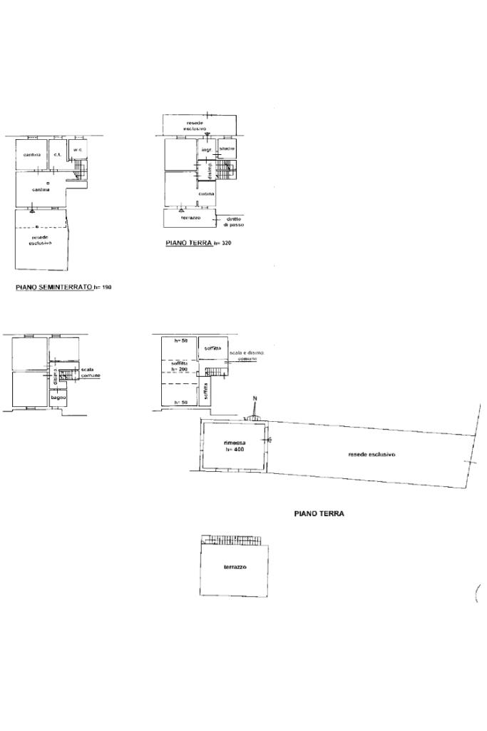
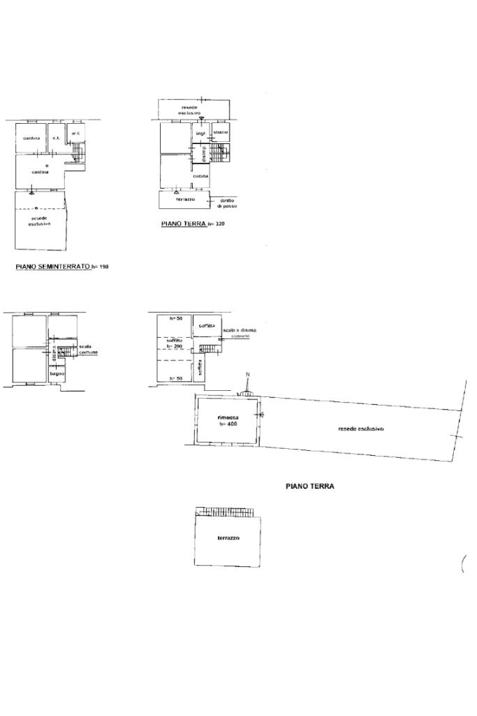
In una tranquilla zona residenziale, a pochi passi dal centro storico, proponiamo un terratetto libero su due lati che si distingue per gli ambienti ben distribuiti e la presenza di molteplici spazi esterni. Attraverso il resede frontale si entra in un ambiente che trasmette subito sensazioni di familiarità: l’ingresso apre su spazi equilibrati, dove lo studio, il soggiorno e la sala da pranzo con cucinotto creano una zona giorno armoniosa, pensata per momenti di condivisione e quotidianità. Dalla sala da pranzo si raggiunge il resede tergale esclusivo, un angolo esterno riservato e silenzioso, ideale per colazioni all’aperto o per rilassarsi a fine giornata.

Salendo al primo piano troviamo la zona notte, caratterizzata da tre ampie camere matrimoniali, un bagno finestrato e un comodo ripostiglio dal quale si accede alla soffitta, ideale come ulteriore zona di stivaggio.

Il piano seminterrato ospita una taverna particolarmente funzionale e versatile: qui si trovano un disimpegno, un vano attualmente utilizzato come camera per gli ospiti, un secondo bagno e una spaziosa area conviviale dove poter organizzare cene o ritrovi, con accesso diretto a uno spazio esterno privato che aggiunge ulteriore valore all’immobile.

A completare la proprietà vi sono un garage, con un'ampia terrazza panoramica e un resede esclusivo, con accesso da cancello carrabile, utili sia come posti auto che come ulteriori spazi di servizio. Una soluzione ideale per chi cerca comodità, indipendenza e vicinanza al centro, senza rinunciare al comfort degli spazi esterni.

Per informazioni o per fissare un appuntamento non esitare a contattarci.

Mostra tutto

Nelle vicinanze

Trasporto pubblico Trasporto pubblico
stazione di Pistoia
stazione di Pistoia
1,2 Km
Pistoia Ovest
Pistoia Ovest
1,6 Km
Trasporto pubblico
370 m
P. Garibaldi
P. Garibaldi
760 m
Ricariche auto elettriche Ricariche auto elettriche
Punto Enel di Pistoia | EnelX
830 m
Parcheggio Stazione di Pistoia | EnelX
1,1 Km
Esselunga di Porta Nuova
1,7 Km
COOP Pistoia Sala Soci | EnelX
1,9 Km
COOP Pistoia | EnelX fast
2,0 Km
Scuole Scuole
Scuola Elementare A. Frosini
320 m
Scuole
730 m
Liceo Classico Forteguerri
910 m
Istituto Comprensivo Statale 'Raffaello'
920 m
Istituto A. Pacinotti
950 m
Farmacia Farmacia
Farmacia
410 m
Farmacia Banci
610 m
Nannucci
710 m
Farmacia De Candia
800 m
Farmacia Le Fornaci
1,1 Km
Ospedali Ospedali
Ospedale San Jacopo
2,5 Km
Pronto Soccorso Ospedale San Jacopo
2,5 Km
Supermercati Supermercati
Esselunga
660 m
Conad
890 m
Sigma
1,1 Km
Conad City
1,3 Km
ZONA Market
1,4 Km
Negozi Negozi
Antica Panetteria Gelli
420 m
Il Forno
460 m
Razzo Abbigliamento
470 m
Mastrella
520 m
Milano 51
550 m
Bar Bar
Bar
200 m
Caffè San Lorenzo
300 m
Club del Negroni
390 m
Caffè Della Robbia
450 m
Bar Aurora
450 m
Ristoranti Ristoranti
il ceppo - ristorante cocktail lab
420 m
Il Duomo
570 m
Ristoranti
580 m
Fuji Sushi
580 m
Wok Park
590 m
Mostra tutto

Caratteristiche

Rif.:
61148956
Piano:
Su più livelli di 3
Totale piani:
3
Box:
1
Posti auto:
2
Terrazzi:
2
Mostra tutto
Prezzo Prezzo
€ 398.000
Rata mutuo Rata mutuo
€ 1.875 / mese
Spese annue Spese annue
€ 0
Proponi il tuo prezzoProponi il tuo prezzo

Classe Energetica

G
G
G
G
G
G
G
G
G
EP globale non rinnovabile:
261.05 kW h/m² anno
EP globale rinnovabile:
0.02 kW h/m² anno
EP invernale del fabbricato:
EP estiva del fabbricato:
Anno di costruzione:
1900
Riscaldamento:
Autonomo
Tipo impianto:
A radiatori
Tipo alimentazione:
Metano

Ti interessa visionare l'immobile?

Fissa un appuntamento  Fissa un appuntamento

Richiedi informazioni

Clicca su Leggi per aprire l'informativa
* Questi campi sono obbligatori

Calcola il tuo mutuo

Semplice e senza impegno
Anticipo

( % )
Mutuo

( % )

pochi semplici passi

inserisci i tuoi dati
Questionario completato
Grazie per aver richiesto un appuntamento senza impegno con un nostro Consulente del Credito e Assicurativo.

Hai inserito correttamente tutti i dati necessari e a breve riceverai una e-mail con un link da convalidare per inviare i tuoi dati.
Affiliato
Studio Pistoia Centro Sas
Corso Silvano Fedi, 49/51 51100 Pistoia (PT)

Il nostro staff


  • Francesco Mario Primo Brilli
    Affiliato

  • Zahra Batool
    Collaboratrice

  • Elisa Danesi
    Responsabile

  • Eleonora Manfredini
    Collaboratrice
Corso Silvano Fedi, 49/51 51100 Pistoia (PT)
Zona: Pistoia Centro Città
Mostra su mappa
Affiliato
Studio Pistoia Centro Sas
Corso Silvano Fedi, 49/51 51100 Pistoia (PT)

2026 Tecnocasa Franchising S.p.A. - P. IVA 08365160152 - Via Monte Bianco 60/A 20089 Rozzano (MI). Ogni agenzia ha un proprio titolare ed è autonoma. Privacy policy | Policy utilizzo | Cookie policy